Hoppa till innehållet

VHK-1319

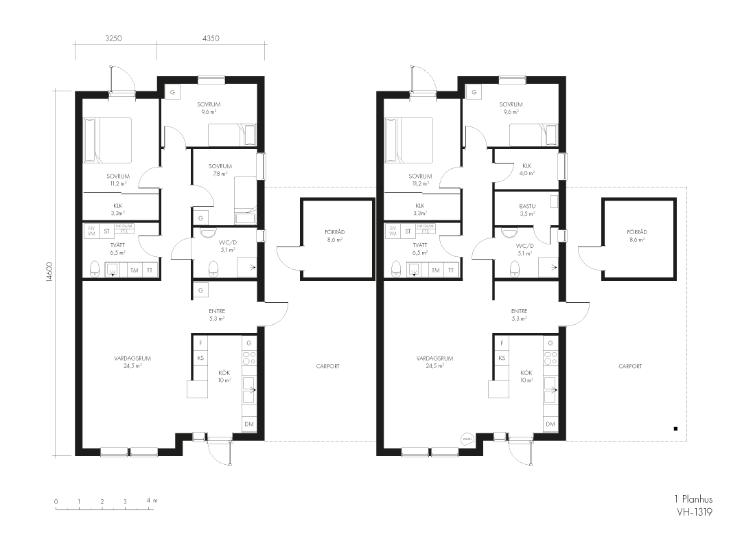
Semi-detached house in Gammelstad

For HSB, we have built city villas in sq. Lunden, Gammelstad. The houses are linked two by two with a carport in between. The architecture is in a neo-Funkist style with pulpit ceilings and generous window sections facing the scenic surroundings.

 
 
 
 
Type of house: 0-floors
Living space: 95 m2
Construction area: 156 m2

Frame assembly, what is included?

Frame and material delivery requires good knowledge of designs, requirements and standards. You yourself must appoint a person who is responsible for controlling the work taken over.

Vittjärvshus supplies the frame, completes the house's exterior and supplies material kits with complete drawings for the interior work. You then take over the contract and build and hire contractors for the interior work. Vittjärvshus also provides documentation for the procurement of subcontracts.

Turnkey projects, what's included?

You do not need any knowledge of execution. Vittjärvhus is responsible for all parts of the production, the procurement and the coordination of subcontracts until the house is completed.

Vittjärvhus is responsible for the entire contract, delivering drawings and construction. We are also responsible for all materials and the work required for a complete turnkey house. Vittjärvshus also handles building administration, contacts with authorities and ensures that applicable laws are followed.

FACTS ABOUT THE HOUSE

Rooms: 4
Living space: 95 m2
Construction area: 156 m2

Floor plan

Hemma hos

Nedan kan du se våran kundberättelser

Kundberättelser

50 år av bygglädje, kvalitet och en framtid fylld av möjligheter

Läs mer
Rickard Eriksson
Rickard Eriksson

CONTACT US

Do you want to change the layout? Do you have your own thoughts and ideas? We help you design and build your dream house! Contact one of our sales representatives or fill out the contact form below.

Contact Vittjärvshus

I want a meeting

This page is protected by reCAPTCHA. Googles privacy policy and terms of use applies here.